DACHY PŁASKIE


Folia EPDM Carlisle
Dachy zielone "green-tech"
Folia TPO Carlisle
Instrukcja techniczna
Karty technologiczne
Aprobaty i atesty



ZBIORNIKI WODNE
POZOSTAŁE MATERIAŁY


Folia TPO Carlisle: Instrukcja techniczna

Gwarancje
Wymogi ogólne
Składowanie materiałów na budowie
Przygotowanie podłoża
Paroizolacja
Okap dachu
Termoizolacja
Rozkładanie i mocowanie folii
Zgrzewanie folii na gorąco
Problemy przy zgrzewaniu folii/Naprawy
Dodatkowe mocowanie folii
Obróbki
Chodniki na dachu
Uszczelnienia robocze
Czyszczenie folii
Detale instalacji
Materiały systemowe

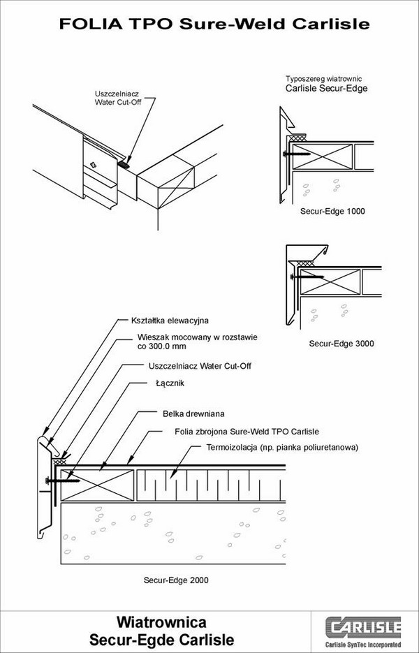
DETALE INSTALACJI

W niniejszym rozdziale przedstawione zostaną typowe rozwiązania detali spotykanych powszechnie na dachach. Niektóre rozwiązania przedstawione są opcjonalnie i w gestii projektanta lub wykonawcy jest zastosowanie optymalnego rozwiązania w danej sytuacji.

Jeżeli przedstawione detale nie są w stanie pomóc w opracowaniu jakiegoś konkretnego detalu projektowanego lub wykonywanego pokrycia dachowego prosimy o skontaktowanie się z działem technicznym firmy Top-Tech.